Bochum:
Bochum Harpen: Schöne Eigentumswohnung mit Balkon und PKW-Stellplatz provisionsfrei zu verkaufen!
Objekt-Nr.: 20767124

Wohnung Hausansicht vorne

Wohnung Hausansicht hinten

Hauseingang

EG Treppenhaus

OG Treppenhaus

Diele

Wohnzimmer Blick zum Balkon

Balkon

Kinderzimmer

Schlafzimmer

Küche mit Einbauküche

Duschbad

Hausansicht seitlich PKW Stellplätze

PKW-Stellplatz

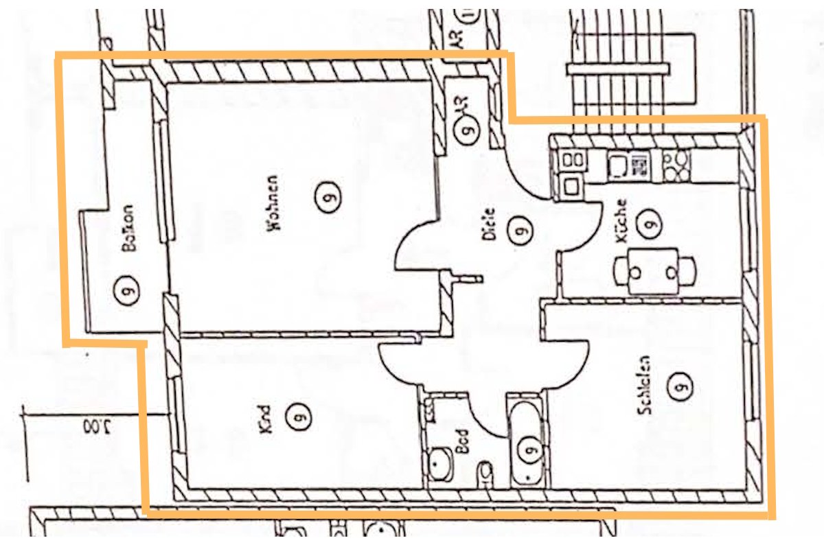
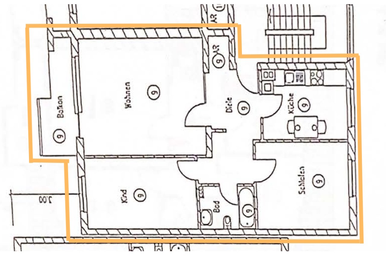
Grundriss















Preis:
169.900 €
Wohnfläche ca.:
77 m²
Zimmeranzahl:
3
FREIESLEBEN-IMMOBILIEN präsentiert Ihnen diese attraktive Eigentumswohnung mit Balkon, PKW-Stellplatz und Kellerraum im Obergeschoss eines gepflegten 6-Familienhauses in schöner Lage von Bochum Harpen - in unmittelbarer Nähe zum Ruhrpark-Einkaufszentrum.
Das von Grünanlagen umgebene Haus wurde im Jahr 1970 in massiver Bauweise und voll unterkellert auf einem Eigengrundstück errichtet.
Die schicke Eigentumswohnung erreicht man über das gepflegte Treppenhaus mit Marmorstufen. Sie bietet ca.…
77m² Wohnfläche verteilt auf das Wohnzimmer mit Zugang auf den Balkon in Süd-Ausrichtung, das Schlafzimmer, das Kinderzimmer, die Küche mit Essbereich, das Duschbad und den großzügigen Eingangsbereich.
Die Fenster der Wohnung sind doppelt verglast und aus dem Jahr 1989.
Ein separater Kellerraum als Nutzfläche gehört ebenso wie ein separater PKW-Stellplatz zu der hübschen Wohnung.
Für die Fahrräder gibt es einen Gemeinschafts-Fahrradkeller.
Des Weiteren gibt es einen Wasch- und Trockenraum für die Hausgemeinschaft.
Beheizt wird das Haus mit einer Zentralheizung aus dem Jahr 2016.
Das monatliche Hausgeld beträgt 363,49€ inkl. Heizkosten.
Davon umlagefähig: 231,80€
Davon nicht umlagefähig: 47,77€
Davon Rücklage: 83,92€
Die Höhe der Rücklage zum 31.12.2024 betragt für das Haus 89.984,43€. Davon entfallen auf die Wohnung 4.769,17€.
Die Höhe der jährlichen Grundsteuer beträgt: ??€
Sie möchten sofort besichtigen?
Dann senden Sie uns bitte eine Anfrage über das Kontaktformular oder per eMail unter:info@immobilienmakler12.de, wir kontaktieren Sie umgehend.
Schriftliche Anfragen werden deutlich schneller bearbeitet als telefonische Anfragen!
PROVISIONSFREI FÜR DEN KÄUFER
Wohnungstyp: Etagenwohnung
Etage: 2
Etagenanzahl: 1
Provisionspflichtig: nein
Küche: Einbauküche
Bad: Dusche
Anzahl Schlafzimmer: 2
Anzahl Badezimmer: 1
Loggia: 1
Keller: Abstellraum
Fahrstuhl: ja
Umgebung: Apotheke, Bus, Einkaufscenter, Einkaufsmöglichkeit, Grundschule, Kindergarten, weiterführende Schule, Wohngegend
Anzahl der Parkflächen: 1 x Außenstellplatz
Qualität der Ausstattung: normal
Baujahr: 1970
Hausgeld: 363,49 €
Bezugsfrei ab: Sofort
Bodenbelag: Fliesen, Laminat
Zustand: gepflegt
Energieklasse: D
Heizung: Zentralheizung
Befeuerungsart: Gas, Öl
Energieausweistyp: Verbrauchsausweis - gültig vom 10.08.2018 bis 09.08.2028
Energieeffizienz-Klasse: D
Baujahr laut Energieausweis: 1970
Für die Immobilie ist keine Courtage vom Käufer zu zahlen.
Das könnte Ihnen auch gefallen
44791 Bochum
Nordrhein-Westfalen
