Oer-Erkenschwick:
Oer-Erkenschwick: -RESERVIERT- Hübsches Einfamilienhaus mit Garage Sackgassenlage provisionsfrei zu verkaufen!
Objekt-Nr.: 20767119

Hausansicht vorne

Vogelperspektive

Hauseingang

EG Blick von Küche in das Wohnzimmer

EG Wohnzimmer

Garten

Blick auf die Terrasse

Gartengrundstück

Hausansicht hinten

EG Blick vom Wohnzimmer zur Küche

EG Küche

EG Küche

DG Schlafzimmer

DG Kinderzimmer

DG Badezimmer

KG Raum

Garage und Einfahrt

Grundriss DG

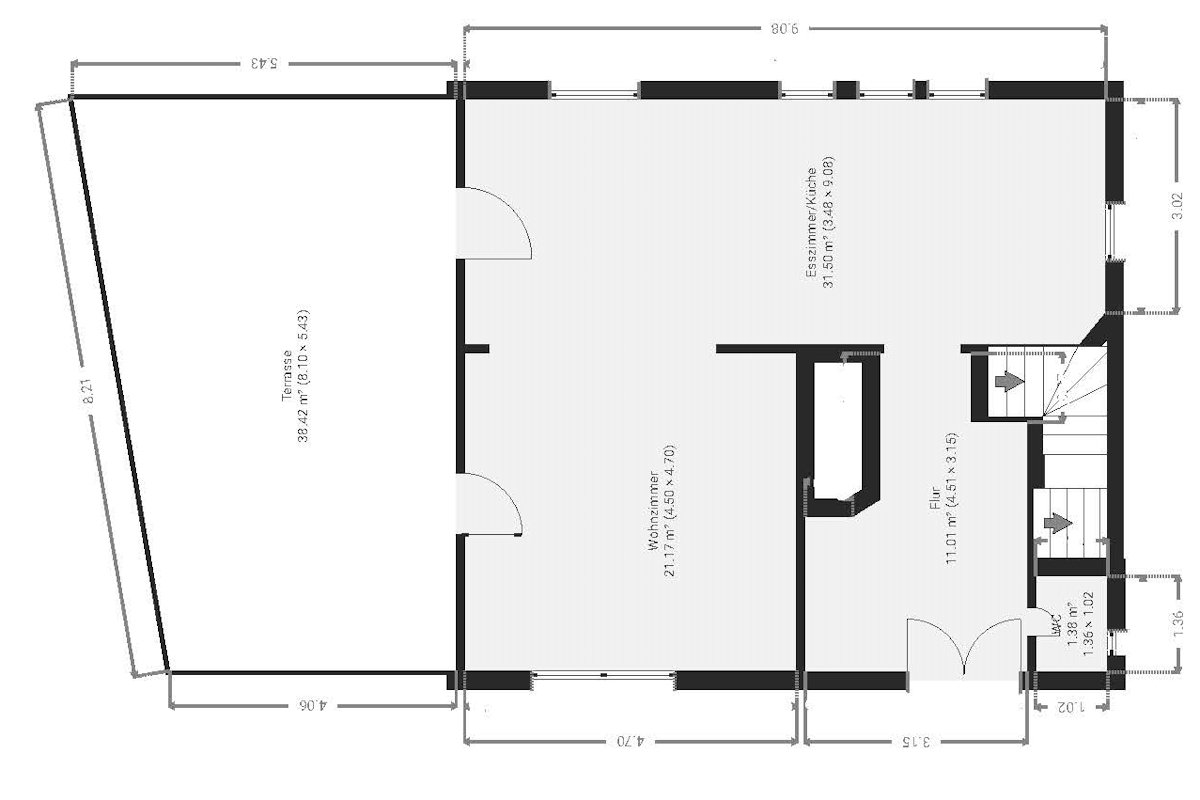
Grundriss EG

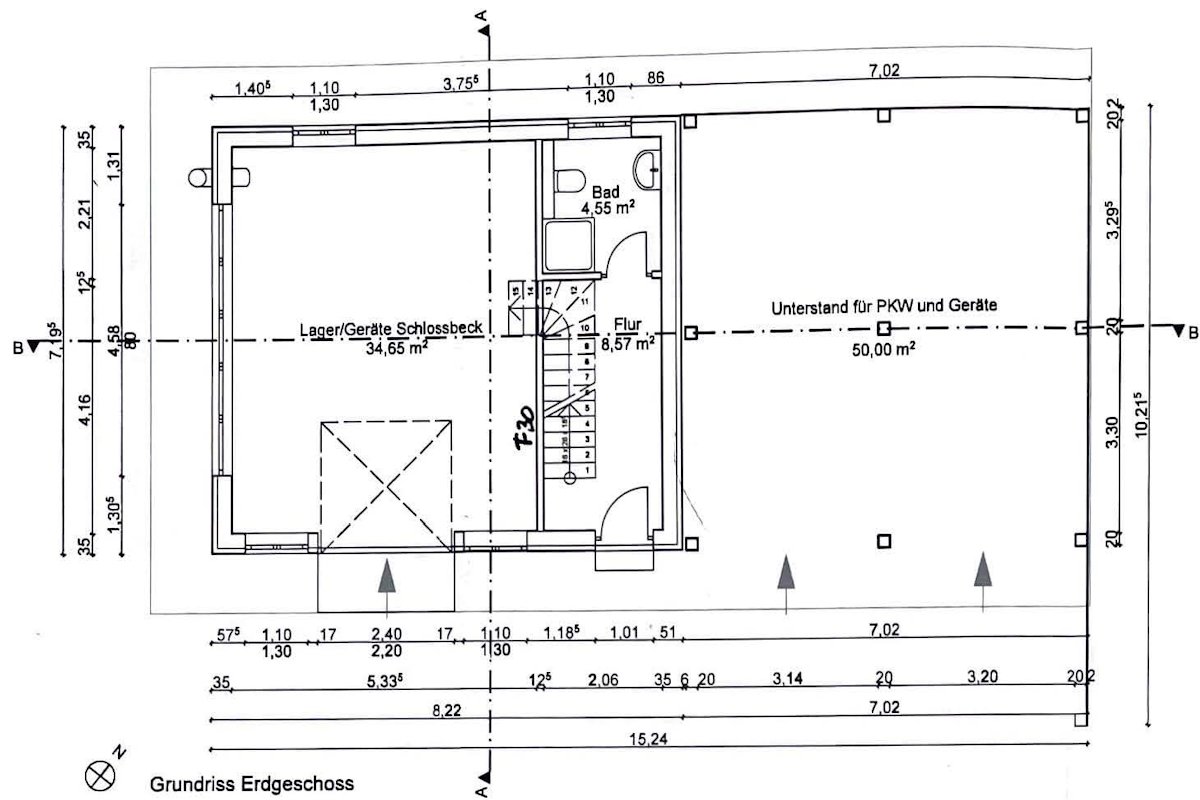
Grundriss KG




















Preis:
299.900 €
Wohnfläche ca.:
95 m²
Grundstück ca.:
345 m²
Zimmeranzahl:
3,5
FREIESLEBEN-IMMOBILIEN präsentiert Ihnen dieses gepflegte und verklinkerte Einfamilienhaus mit Garage in ruhiger Sackgassenlage von Oer-Erkenschwick.
Das charmante Haus wurde im Jahr 1988 in massiver Bauweise und voll unterkellert auf einem ca. 345m² großen Eigengrundstück errichtet.
Es bietet ca. 95m² Wohnfläche und zusätzlich ca. 60m² Nutzfläche im gepflegten Kellergeschoss.
Im luftig gestalteten Erdgeschoss befinden sich das Wohnzimmer mit Zugang auf die Terrasse, Essbereich und schicker Echtholztreppe in das Dachgeschoss, die offene Küche, das Tageslicht Gäste-WC, die Diele und die Garderobe.…
Die Böden im Erdgeschoss sind gefliest und mit Fußbodenheizung ausgestattet.
Im Dachgeschoss befinden sich das Schlafzimmer, das Kinderzimmer, das Tageslicht Badezimmer mit Dusche und Badewanne sowie der Flur.
Der Boden des Badezimmers ist gefliest, die übrigen Böden im Dachgeschoss sind mit hochwertigem Echtholzparkett ausgelegt.
Bodentiefe Fensterelemente und Türen mit Blick in den Garten im Dachgeschoss und Erdgeschoss sorgen für ein helles und freundliches Ambiente.
Das gepflegte Kellergeschoss bietet den Wasch- und Heizungsraum, den Vorratsraum, den großen und vielseitig nutzbaren Kellerraum sowie den Flur.
Beheizt wird das Haus mit einer Gas-Zentralheizung.
Das hübsche und gepflegte Gartengrundstück mit Süd-Ausrichtung lädt zu schönen Stunden im Freien ein.
Für den PKW steht eine massiv gebaute Garage und ein Stellplatz vor der Garage zur Verfügung.
Die jährlichen Grundbesitzabgaben betragen 900,55€.
Sie möchten sofort besichtigen?
Dann senden Sie uns bitte eine Anfrage über das Kontaktformular oder per eMail unter:info@immobilienmakler12.de, wir kontaktieren Sie umgehend.
Schriftliche Anfragen werden deutlich schneller bearbeitet als telefonische Anfragen!
PROVISIONSFREI FÜR DEN KÄUFER
Haustyp: Einfamilienhaus
Etagenanzahl: 3
Provisionspflichtig: nein
Nutzfläche ca.: 60 m²
Küche: Einbauküche, offen
Bad: Dusche, Wanne, Fenster
Anzahl Schlafzimmer: 2
Anzahl Badezimmer: 1
Terrasse: 1
Gäste-WC: ja
Garten: ja
Keller: voll unterkellert
Umgebung: Apotheke, Einkaufsmöglichkeit, Grundschule, Kindergarten, ruhige Gegend, weiterführende Schule, Wohngegend
Anzahl der Parkflächen: 1 x Außenstellplatz; 1 x Garage
Qualität der Ausstattung: normal
Baujahr: 1988
Verfügbar ab: Nach Absprache
Bodenbelag: Fliesen, Parkett
Zustand: gepflegt
Energieverb. Warmwasser enthalten: ja
Energieklasse: F
Heizung: Zentralheizung
Befeuerungsart: Gas
Energieausweistyp: Verbrauchsausweis - gültig vom 25.08.2025 bis 24.08.2035
Energieeffizienz-Klasse: F
Baujahr laut Energieausweis: 1988
Für die Immobilie ist keine Courtage vom Käufer zu zahlen.
Das könnte Ihnen auch gefallen
45739 Oer-Erkenschwick
Recklinghausen
Nordrhein-Westfalen



















































































