Münster:
Münster-Zentrum: -VERKAUFT- Schicke, helle Eigentumswohnung Balkon Tiefgaragen-Stellplatz prov.-frei zu verkaufen!
Objekt-Nr.: 20767098

Hausansicht vorne

Hausansicht hinten

Hauseingang

Treppenhaus

Treppenhaus Wohnungstür

Wohnzimmer

Wohnzimmer

Wohnzimmer Blick zur Küche

Balkon

Küche mit Einbauküche

Küche Fensterfront

Schlafzimmer

Kinderzimmer

Duschbad

Tiefgarage

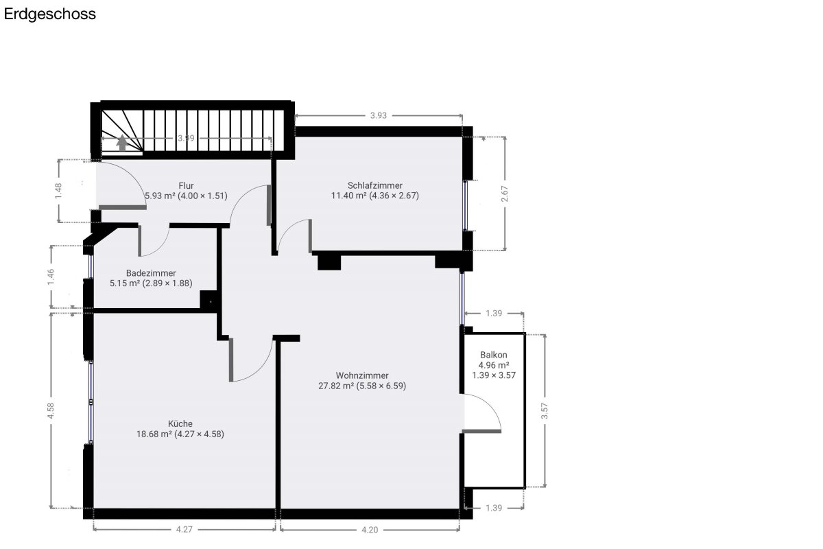
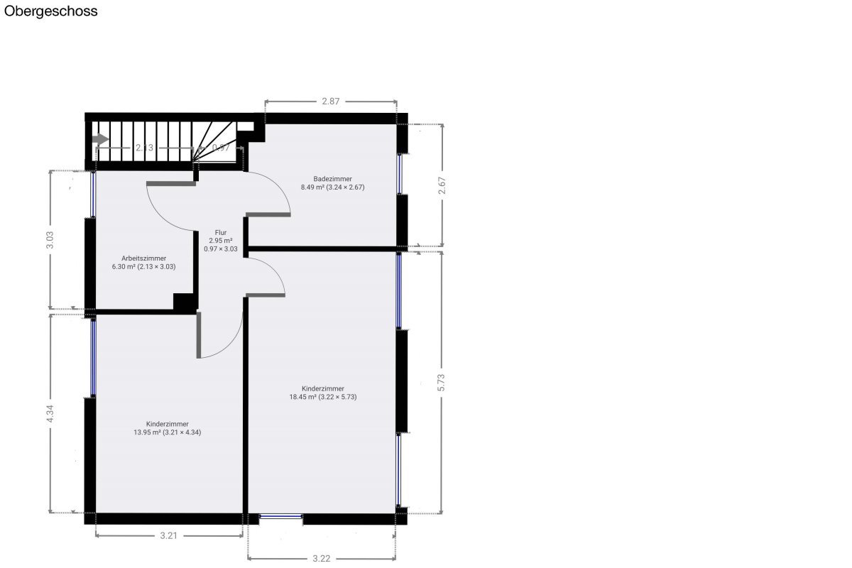
Grundriss
















Preis:
469.000 €
Wohnfläche ca.:
82 m²
Zimmeranzahl:
3
FREIESLEBEN-IMMOBILIEN präsentiert Ihnen diese attraktive Eigentumswohnung mit Balkon, Tiefgaragen-Stellplatz und Kellerraum in einer hochwertigen Wohnanlage in begehrter Lage von Münster Zentrum.
Das gepflegte Mehrfamilienhaus wurde im Jahr 2001 in massiver Bauweise, voll unterkellert auf einem Eigengrundstück errichtet.
Die schicke, lichtdurchflutete Wohnung mit ca.…
82m² Wohnfläche befindet sich im ersten Obergeschoss des gepflegten Mehrfamilienhauses, Sie bietet ein geräumiges Wohnzimmer mit Zugang auf den überdachten Balkon in West-Ausrichtung, ein Schlafzimmer, ein Kinderzimmer, die lichtdurchflutete Küche mit Einbauküche und Essbereich, ein zeitlos gestaltetes Duschbad, einen praktischen Abstellraum und einen Flur.
Ein separater Kellerraum bietet zusätzlichen Stauraum.
Für den PKW ist ein Tiefgaragen-Stellplatz vorhanden.
Die Wohnung ist auch ideal für Familien mit Kind, da sich Spielplätze und eine Kindertagesstätte in unmittelbarer Nähe befinden
Das monatliche Hausgeld für die Wohnung und den Tiefgaragen-Stellplatz beträgt: 273,86€
Davon umlagefähig: 198,20€
Davon nicht umlagefähig: 75,66€ (inkl. 30,33€ Rücklage)
Die aktuelle Grundsteuer beträgt: 241,98€
Sie möchten sofort besichtigen?
Dann senden Sie uns bitte eine Anfrage über das Kontaktformular oder per eMail unter:info@immobilienmakler12.de, wir kontaktieren Sie umgehend.
Schriftliche Anfragen werden deutlich schneller bearbeitet als telefonische Anfragen!
PROVISIONSFREI FÜR DEN KÄUFER
Wohnungstyp: Etagenwohnung
Etage: 2
Etagenanzahl: 4
Provisionspflichtig: nein
Bad: Dusche
Anzahl Schlafzimmer: 2
Anzahl Badezimmer: 1
Loggia: 1
Keller: ja
Umgebung: Apotheke, Bahnhof, Bus, Einkaufsmöglichkeit, Grundschule, Kindergarten, ruhige Gegend, Spielplatz, weiterführende Schule, Wohnanlage, Wohngegend
Anzahl der Parkflächen: 1 x Tiefgarage
Möbliert: nein
Baujahr: 2001
Hausgeld: 273,86 €
Bezugsfrei ab: Sofort
Bodenbelag: Fliesen
Zustand: gepflegt
Energieverb. Warmwasser enthalten: ja
Energieklasse: B
Heizung: Zentralheizung
Befeuerungsart: Fernwärme
Energieausweistyp: Verbrauchsausweis - gültig vom 07.06.2018 bis 07.06.2028
Energieeffizienz-Klasse: B
Baujahr laut Energieausweis: 2001
Für die Immobilie ist keine Courtage vom Käufer zu zahlen.
Das könnte Ihnen auch gefallen
48147 Münster
Nordrhein-Westfalen















































