Bochum:
Bochum Wiemelhausen: Stilvolle Eigentumswohnung Balkon Garage provisionsfrei zu verkaufen!
Objekt-Nr.: 20767132

Hausansicht hinten

Hausansicht vorne mit Garagen

Hauseingang

Treppenhaus EG

Treppenhaus Hochpaterre

Diele Blick Wohnzimmer / Kinderzimmer

Wohnzimmer mit Balkonzugang

Balkon

Aussicht vom Balkon

Küche mit Einbauküche

Badezimmer mit Badewanne

Schlafzimmer

Kinderzimmer

Gäste-WC

Garage

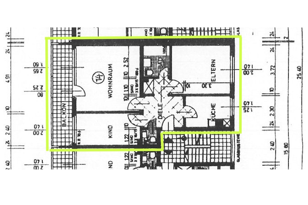
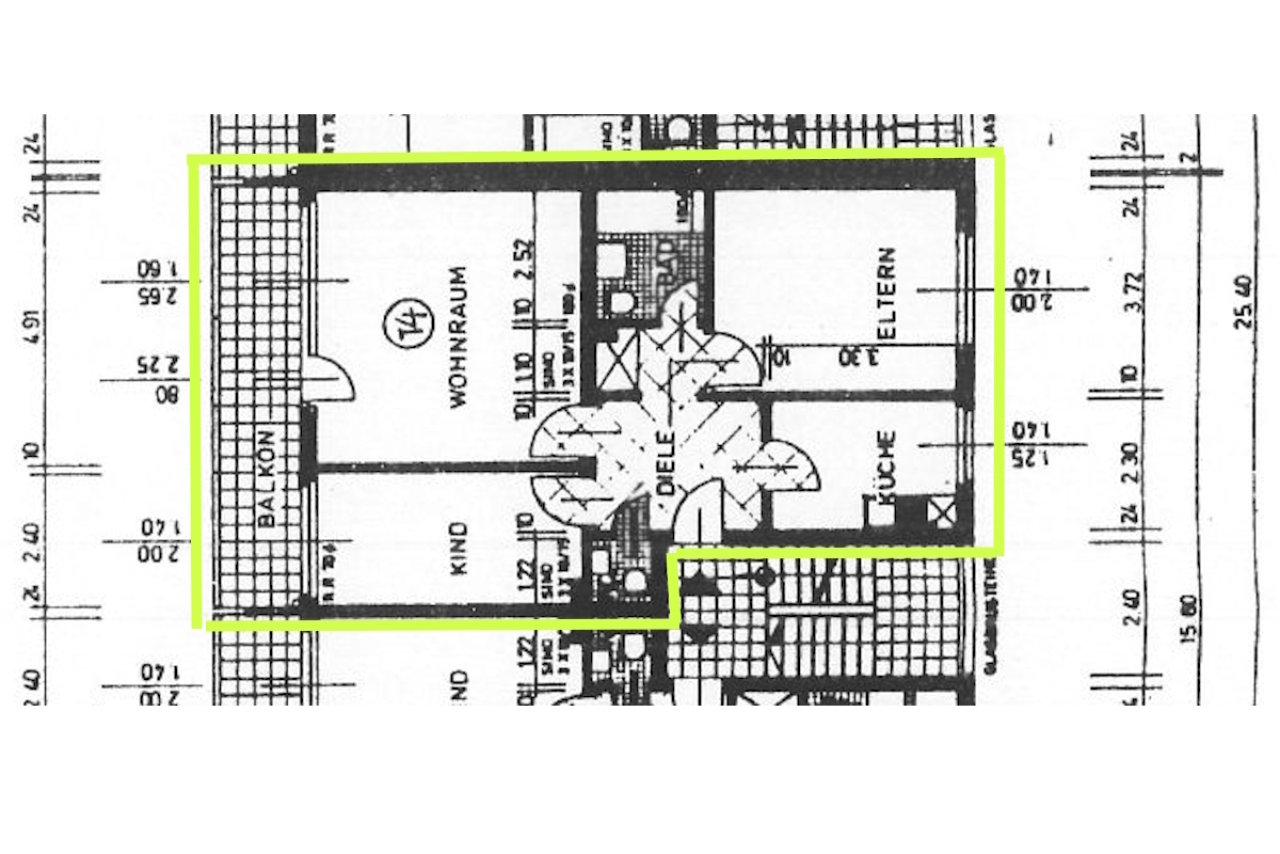
Grundriss
















Preis:
325.000 €
Wohnfläche ca.:
80 m²
Zimmeranzahl:
3
FREIESLEBEN-IMMOBILIEN präsentiert Ihnen diese stilvolle Hochpaterre-Eigentumswohnung mit Balkon, Kellerraum, eigener Garage im beliebten Bochumer Stadtteil Wiemelhausen.
Die hochwertige Wohnung befindet sich in einem gepflegten 9-Familienhaus. Das Haus wurde im Jahr 1969 in massiver Bauweise und unterkellert auf Eigengrund errichtet.
Die modern gestaltete, im Jahr 2019 umfangreich modernisierte Wohnung mit ca. 80m² Wohnfläche bietet ein Wohnzimmer mit Zugang auf den großen Balkon in West-Ausrichtung, ein Eltern-Schlafzimmer mit großem Einbauschrank, ein Kinderzimmer, eine Küche mit schicker Einbauküche, ein im Jahr 2019 modernisiertes Badezimmer, ein im Jahr 2019 modernisiertes Gäste-WC und eine Diele.
Die Fenster im Wohnzimmer wurden im Jahr 2008, die Fenster im Schlafzimmer und Kinderzimmer wurden im Jahr 2019 erneuert.…
Zusätzlichen Stauraum bietet der eigene Kellerraum. Ein separater Wasch- und Trockenraum steht der Hausgemeinschaft zur Verfügung. Hier ist ein eigener Stellplatz und Wasseranschluss für Waschmaschine und Trockner vorhanden.
Für die PKW steht eine Garage mit elektrisch bedienbarem Sektionaltor zur Verfügung.
Beheizt wird die Wohnung mit Gas-Etagenheizung aus dem Jahr 2008.
Die Außenwände, die Kellerdecken, das Dach des Hauses und die Garagen unter den Wohnungen sind gedämmt.
Das monatliche Hausgeld inkl. Gartenpflege, Winterdienst und Kabelgebühr in Höhe von insgesamt 407,-€ setzt sich wie folgt zusammen:
Umlagefähig: 257,96€
Nicht umlagefähig: 39,46€
Instandhaltungsrücklage: 109,58€
Die Höhe der Instandhaltungsrücklage für die zusammen gehörenden Häuser war zum 12.03.2026: 136.918,24€. Davon entfielen 6.845,91€ auf die hier angebotene Wohnung.
Die Höhe der jährlichen Grundsteuer beträgt: 240,03€
Sie möchten sofort besichtigen?
Dann senden Sie uns bitte eine Anfrage über das Kontaktformular oder per eMail unter:info@immobilienmakler12.de, wir kontaktieren Sie umgehend.
Schriftliche Anfragen werden deutlich schneller bearbeitet als telefonische Anfragen!
PROVISIONSFREI FÜR DEN KÄUFER
Wohnungstyp: Hochparterre
Etage: 1
Etagenanzahl: 1
Provisionspflichtig: nein
Nutzfläche ca.: 5 m²
Küche: Einbauküche
Bad: Wanne
Anzahl Schlafzimmer: 2
Anzahl Badezimmer: 1
Balkon: 1
Gäste-WC: ja
Keller: Abstellraum
Umgebung: Apotheke, Einkaufsmöglichkeit, Grundschule, Kindergarten, weiterführende Schule, Wohngegend
Anzahl der Parkflächen: 1 x Garage
Letzte Modernisierung/ Sanierung: 2019
Qualität der Ausstattung: gehoben
Baujahr: 1969
Bezugsfrei ab: Nach Absprache
Bodenbelag: Fliesen, Laminat
Zustand: gepflegt
Energieverb. Warmwasser enthalten: ja
Energieklasse: D
Heizung: Etagenheizung
Befeuerungsart: Gas
Energieausweistyp: Verbrauchsausweis - gültig vom 21.09.2018 bis 20.09.2028
Energieeffizienz-Klasse: D
Baujahr laut Energieausweis: 1973
Für die Immobilie ist keine Courtage vom Käufer zu zahlen.
Auf Wunsch empfehlen wir Ihnen unsere Finanzierungsexperten unserer Partnerbanken für eine schnelle und günstige Immobilienfinanzierung.
Das könnte Ihnen auch gefallen
44799 Bochum
Nordrhein-Westfalen








































































