Nottuln:
Nottuln: -VERKAUFT- Schickes sehr gepflegtes Einfamilienhaus im Bungalowstil mit Garage provisionsfrei zu verkaufen
Objekt-Nr.: 20767116

Hausansicht

Vogelperspektive

Hauseingang

Wohn-, Essbereich

Wohnzimmer

Wohnzimmer

Terrasse

Terrasse

Haus Rückansicht

Terrasse

Kaminzimmer

Küche

Schlafzimmer

Kinderzimmer

Tageslicht Duschbad

Gäste-WC

Partyraum im Kellergeschoss

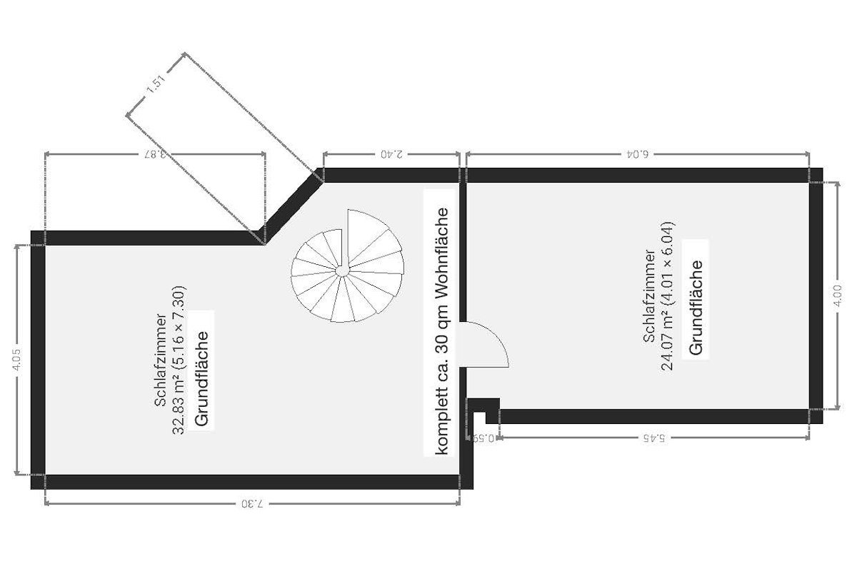
Grundriss

Grundriss KG



















Preis:
399.900 €
Wohnfläche ca.:
134 m²
Grundstück ca.:
636 m²
Zimmeranzahl:
4,5
FREIESLEBEN-IMMOBILIEN präsentiert Ihnen dieses hochwertige, verklinkerte Einfamilienhaus im Bungalowstil mit Garage in gehobener Lage von Nottuln.
Das Einfamilienhaus wurde im Jahr 1977 in massiver Bauweise und voll unterkellert auf einem ca. 636m² großen Eigengrundstück errichtet.
Es bietet ca. 134m² Wohnfläche verteilt auf das Wohnzimmer mit Zugang auf die ca. 29m² große Terrasse in Süd-Ausrichtung, das Esszimmer, das Kaminzimmer mit Zugang auf die Terrasse und offenem Kamin, das Schlafzimmer mit Zugang auf die Terrasse, das Kinderzimmer, die Küche mit hochwertiger Einbauküche, das vor ca. 15 Jahren modernisierte Tageslicht-Duschbad, das vor ca. 15 Jahren modernisierte Gäste-WC, den Flur mit Abstellraum und den Windfang mit Garderobe.
Der Übergang vom Wohnzimmer in das Esszimmer und das Kaminzimmer ist offen gestaltet.
Große, bodentiefe Glaselemente lassen Wohnzimmer, Kaminzimmer und Schlafzimmer besonders hell und freundlich wirken.…
Das gesamte Erdgeschoss ist mit Fußbodenheizung ausgestattet.
Im gefliesten Kellergeschoss befindet sich neben dem Hausanschlussraum und Kellerräumen ein hübsch gestalteter Partyraum mit Wohnraumatmosphäre.
Beheizt wird das Haus mit einer Gaszentralheizung aus dem Jahr 1991.
Ein Glasfaseranschluss liegt vor dem Haus.
Das hübsch angelegte und sehr gepflegte Gartengrundstück in attraktiver Süd-Ausrichtung lädt zu schönen Stunden im Freien ein.
Für den PKW steht eine vollmassive Garage mit elektrisch bedienbarem Sektionaltor und Zugang auf die Terrasse zur Verfügung, des Weiteren ein Stellplatz vor der Garage und öffentliche Parkplätze vor dem Haus.
Die jährlichen Grundbesitzabgaben betragen: 1.181,28€.
Sie möchten sofort besichtigen?
Dann senden Sie uns bitte eine Anfrage über das Kontaktformular oder per eMail unter:info@immobilienmakler12.de, wir kontaktieren Sie umgehend.
Schriftliche Anfragen werden deutlich schneller bearbeitet als telefonische Anfragen!
PROVISIONSFREI FÜR DEN KÄUFER
Haustyp: Bungalow
Etagenanzahl: 1
Provisionspflichtig: nein
Nutzfläche ca.: 120 m²
Küche: Einbauküche
Bad: Dusche, Fenster
Anzahl Schlafzimmer: 2
Anzahl Badezimmer: 1
Terrasse: 1
Gäste-WC: ja
Garten: ja
Kamin: ja
Keller: voll unterkellert
Umgebung: Grundschule, Kindergarten, ruhige Gegend, Pool, weiterführende Schule, Wohngegend
Anzahl der Parkflächen: 1 x Garage
Letzte Modernisierung/ Sanierung: 2010
Qualität der Ausstattung: gehoben
Baujahr: 1977
Verfügbar ab: Nach Absprache
Bodenbelag: Fliesen, Teppichboden
Zustand: gepflegt
Heizung: Zentralheizung
Befeuerungsart: Gas
Energieausweistyp: Bedarfsausweis - gültig vom 02.09.2025 bis 01.09.2035
Energieeffizienz-Klasse: E
Baujahr laut Energieausweis: 1977
Für die Immobilie ist keine Courtage vom Käufer zu zahlen.
Auf Wunsch empfehlen wir Ihnen unsere Finanzierungsexperten unserer Partnerbanken für eine schnelle und günstige Immobilienfinanzierung.
Das könnte Ihnen auch gefallen
48301 Nottuln
Coesfeld
Nordrhein-Westfalen



























































