Datteln:
Datteln: -VERKAUFT- Großes 2-Familienhaus Mehrgenerationenhaus beliebte Lage Garage provisionsfrei zu verkaufen!
Objekt-Nr.: 20767067

Garten Blick zum Haus

Eingangsbereich Treppenhaus

Wohnzimmer Blick Garten

Wohnzimmer Blick Essbereich

Schlafzimmer

Badezimmer

Badezimmer

Garten

Hausansicht vorne

Garage

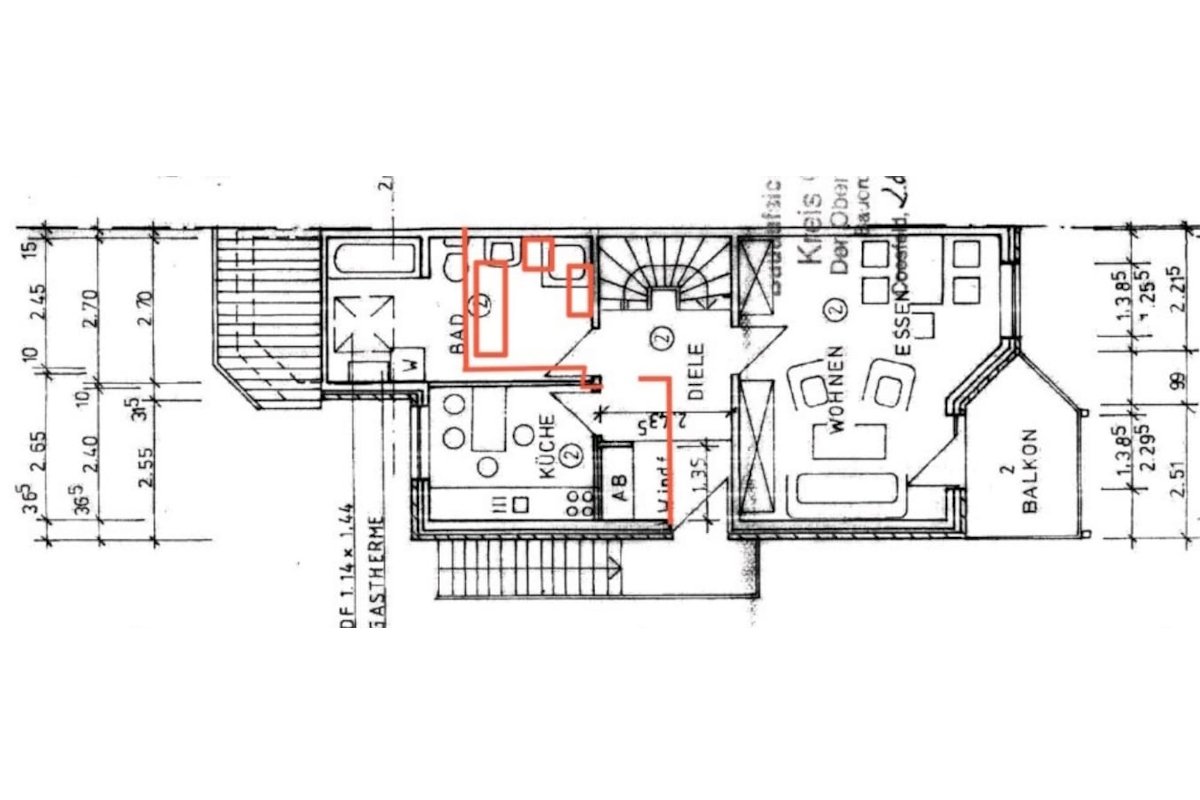
Grundriss OG

Grundriss EG

Grundriss KG













Preis:
329.900 €
Wohnfläche ca.:
150 m²
Grundstück ca.:
356 m²
Zimmeranzahl:
5
FREIESLEBEN-IMMOBILIEN präsentiert Ihnen dieses große Zweifamilienhaus / Mehrgenerationenhaus mit Garten, Garage und PKW-Stellplatz in grüner Umgebung im beliebten Dattelner Ortsteil Meckinghoven.
Das gepflegte Haus wurde im Jahr 1969 mit ca. 150m² Wohnfläche in massiver Bauweise und voll unterkellert auf einem ca. 356m² großen Grundstück errichtet.
Im Jahr 2013 wurde das Badezimmer im Erdgeschoss aufwändig kernsaniert sowie die Elektro-Installationen und die Leitungswasserrohre erneuert.
Die doppelt verglasten Fenster mit Rolläden stammen aus dem Jahr 1997.…
Die Gas-Zentralheizung mit Brennwerttechnik ist aus dem Jahr 1998.
Vom pflegeleicht angelegten Vorgarten gelangt man in das gepflegte Treppenhaus mit schicker Echtholztreppe.
Die Hauptwohnung des Hauses bietet ca. 93m² Wohnfläche verteilt auf das geräumige Wohnzimmer mit Esszimmerbereich und Zugang auf die überdachte Terrasse in beliebter Süd-West Ausrichtung, das Schlafzimmer, ein Kinderzimmer, eine Küche, ein modernes Tageslicht Badezimmer mit Walk-In Dusche und einen Flur. Ein weiteres Kinderzimmer befindet sich im Obergeschoss des Hauses, alle übrigen Zimmer befinden sich im Erdgeschoss.
Die zweite Wohnung des Hauses ist zur Zeit vermietet (ggf. Kündigungsfrist 6 Monate auf Eigenbedarf), befindet sich im Obergeschoss und bietet ca. 57m² Wohnfläche verteilt auf ein Wohnzimmer, ein Schlafzimmer, eine Küche, ein Tageslicht Badezimmer, einen Flur und einen Abstellraum.
Der über eine Einschubtreppe erreichbare Spitzboden bietet zusätzlichen Stauraum.
Das gepflegte Kellergeschoss bietet den Heizungskeller, den Waschkeller mit Dusche und Zugang über eine Treppe in den Garten, drei weitere Kellerräume und einen Flur.
Der Garten des Hauses in Süd-West Ausrichtung ist pflegeleicht angelegt und komplett eingefriedet.
Die jährlichen Grundbesitzabgaben betragen. 1.817,38€
Das Haus kann vom neuen Eigentümer selbst genutzt sowie ganz oder teilweise vermietet werden.
Sie möchten sofort besichtigen?
Dann senden Sie uns bitte eine Anfrage über das Kontaktformular oder per eMail unter:info@immobilienmakler12.de, wir kontaktieren Sie umgehend.
Schriftliche Anfragen werden deutlich schneller bearbeitet als telefonische Anfragen!
PROVISIONSFREI FÜR DEN KÄUFER
Haustyp: Zweifamilienhaus
Etagenanzahl: 2
Provisionspflichtig: nein
Nutzfläche ca.: 80 m²
Bad: Dusche, Wanne, Fenster
Anzahl Schlafzimmer: 3
Anzahl Badezimmer: 2
Terrasse: 1
Garten: ja
Keller: voll unterkellert
Umgebung: Apotheke, Einkaufsmöglichkeit, Grundschule, Kindergarten, ruhige Gegend, Wohngegend
Letzte Modernisierung/ Sanierung: 2013
Qualität der Ausstattung: normal
Baujahr: 1969
Verfügbar ab: Sofort
Bodenbelag: Fliesen, Laminat
Zustand: gepflegt
Heizung: Zentralheizung
Befeuerungsart: Gas
Energieausweistyp: Bedarfsausweis - gültig vom 20.09.2016 bis 19.09.2026
Energieeffizienz-Klasse: F
Baujahr laut Energieausweis: 1969
Für die Immobilie ist keine Courtage vom Käufer zu zahlen.
Das könnte Ihnen auch gefallen
45711 Datteln
Recklinghausen
Nordrhein-Westfalen














































