Bochum:
Bochum: -VERKAUFT- Handwerker aufgepasst! Top Wohnung RH-Charakter sanierungsbed. provi. frei Bo-Wiemelhausen zu verkaufen.
Objekt-Nr.: 207672

Bochum-ETW-Ku-1

Bochum-ETW-Ku-1a

Bochum-ETW-Ku-1b

Bochum-ETW-Ku-1c

Bochum-ETW-Ku-2

Bochum-ETW-Ku-3

Bochum-ETW-Ku-4

Bochum-ETW-Ku-5

Bochum-ETW-Ku-6









Preis:
259.000 €
Wohnfläche ca.:
75,85 m²
Grundstück ca.:
250 m²
Zimmeranzahl:
3,5
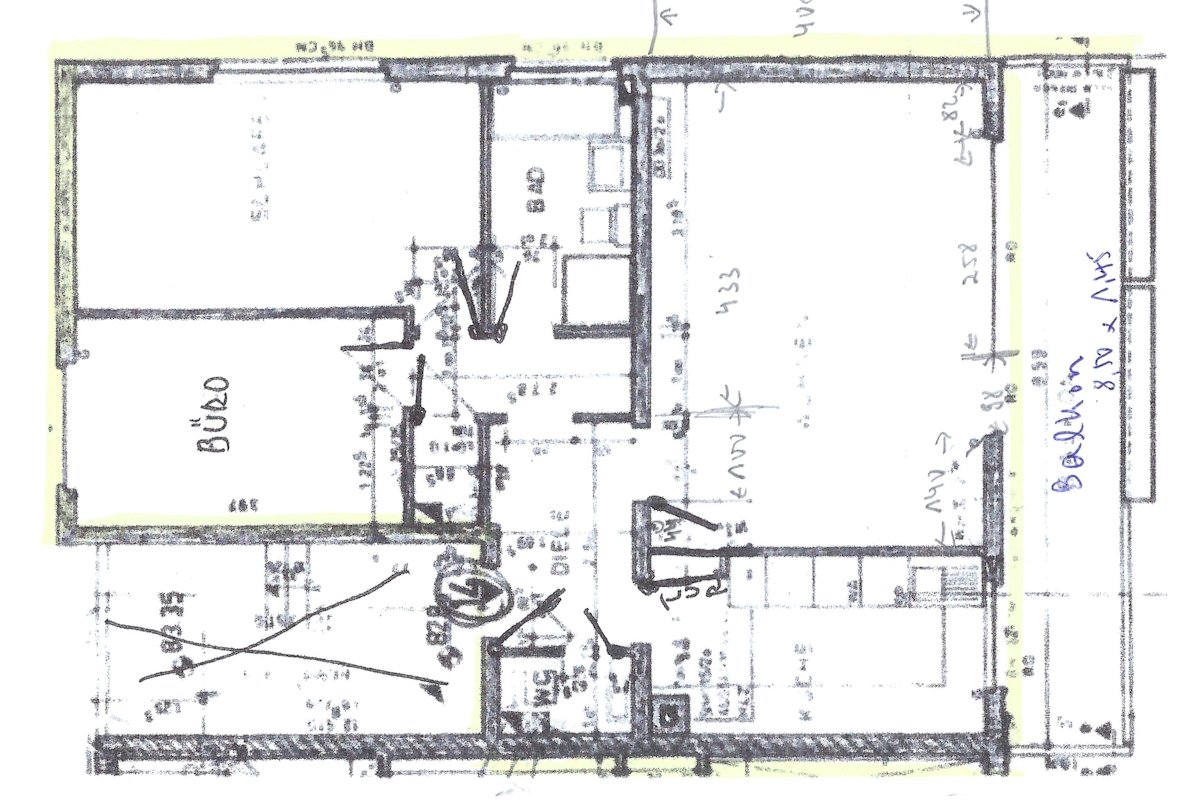
Diese renovierungsbedürftige Eigentumswohnung mit Charme eines Reiheneckhauses befindet sich in einem 1909 in massiver Bauweise errichteten und voll unterkellertem Haus. Der gesamte Außenbereich des Kellers wurde im Jahr 2003 von Außen abgedichtet.
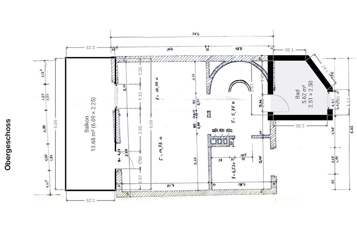
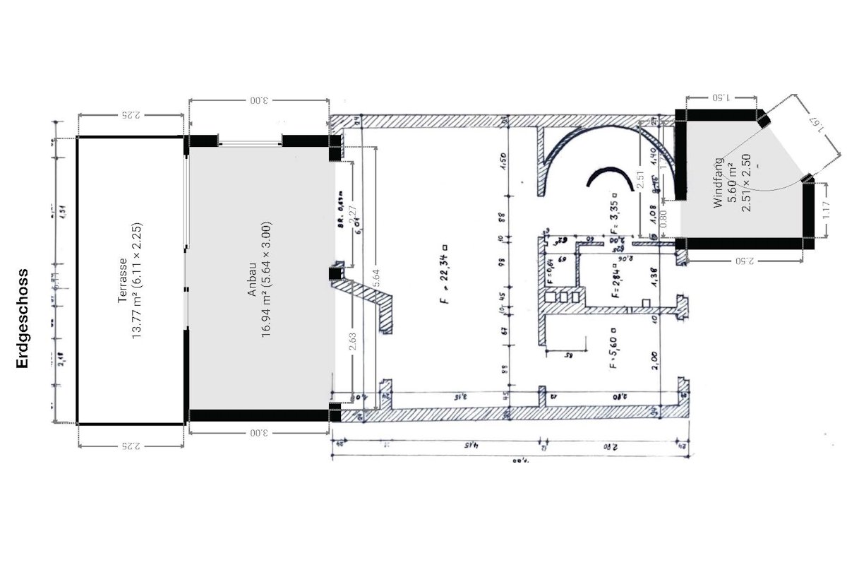
Die schöne Wohnung beinhaltet einen trockenen Vollkeller, das Erdgeschoß, das Obergeschoß sowie einen ausgebauten Spitzboden mit ca. 8m² Nutzfläche. Das Dach des Hauses ist isoliert und gedämmt.
Zur Zeit befindet sich die Gasheizung (Baujahr 2000) im Spitzboden. Diese könnte auch problemlos in den Keller verlegt werden.
Alle Fenster sind einfach verglast und aus Echtholz.
Die Raumhöhe im Erd- und Obergeschoß liegt bei großzügigen ca. 3,0m!
Zu der Wohnung gehört auch ein schönes, ca. 260m² großes Gartengrundstück, welches sich rechts neben der Wohnung bis tief hinter das Haus zieht. Ein Gartenhaus sowie ein gemauerter Schuppen rechts hinter dem Haus, der z.B. für das Abstellen von Fahrrädern genutzt werden kann, gehören auch zu der Immobilie.
Die Wohnfläche der Wohnung umfaßt ca. 75,85m², die Nutzfläche ca. 70m².
Haustyp: Reiheneckhaus
Etagenanzahl: 2
Provisionspflichtig: nein
Nutzfläche ca.: 72 m²
Anzahl Schlafzimmer: 3
Anzahl Badezimmer: 2
Einliegerwohnung: ja
Gäste-WC: ja
Garten: ja
Dachboden: ja
Kamin: ja
Keller: voll unterkellert
Als Ferienhaus geeignet: ja
Umgebung: Einkaufsmöglichkeit
Möbliert: nein
Baujahr: 1909
Bodenbelag: Dielen
Zustand: sanierungsbedürftig
Heizung: Zentralheizung
Befeuerungsart: Gas
Energieausweistyp: Bedarfsausweis
Energieeffizienz-Klasse: F
Baujahr laut Energieausweis: 1909
Für den Käufer provisionsfrei!
Dies ist ein freibleibendes Angebot der FREIESLEBEN KG, Kortumstraße 152, 44787 Bochum. Tel.: 0234-58 13 05 Internet: www.immobilienmakler12.de eMail: info@immobilienmakler12.de Hinsichtlich des Objektes ist die FREIESLEBEN KG auf die Auskünfte der Eigentümer und Behörden angewiesen. Für die Richtigkeit und Vollständigkeit der Angaben kann keine Haftung übernommen werden. Darüber hinaus kann für das Objekt keine Gewähr übernommen und für die Liquidität der Vertragspartner nicht gehaftet werden. Ein Zwischenverkauf und Irrtümer bleiben vorbehalten.
Wir weisen auf unsere Allgemeinen Geschäftsbedingungen hin. Durch weitere Inanspruchnahme unserer Leistungen erklären Sie die Kenntnis und Ihr Einverständnis.
Das könnte Ihnen auch gefallen
FREIESLEBEN-IMMOBILIEN
44799 Bochum
Nordrhein-Westfalen














































